4B/1-7 Unwins Bridge Rd, St Peters, NSW 2044

Warehouse & Office, Leisure, Signage - Under Offer 25
Leased - $1 per Year - 15/05/2017
4B/1-7 Unwins Bridge Rd, St Peters, NSW 20444B/1-7 Unwins Bridge Rd, St Peters, NSW 20444B/1-7 Unwins Bridge Rd, St Peters, NSW 20444B/1-7 Unwins Bridge Rd, St Peters, NSW 2044

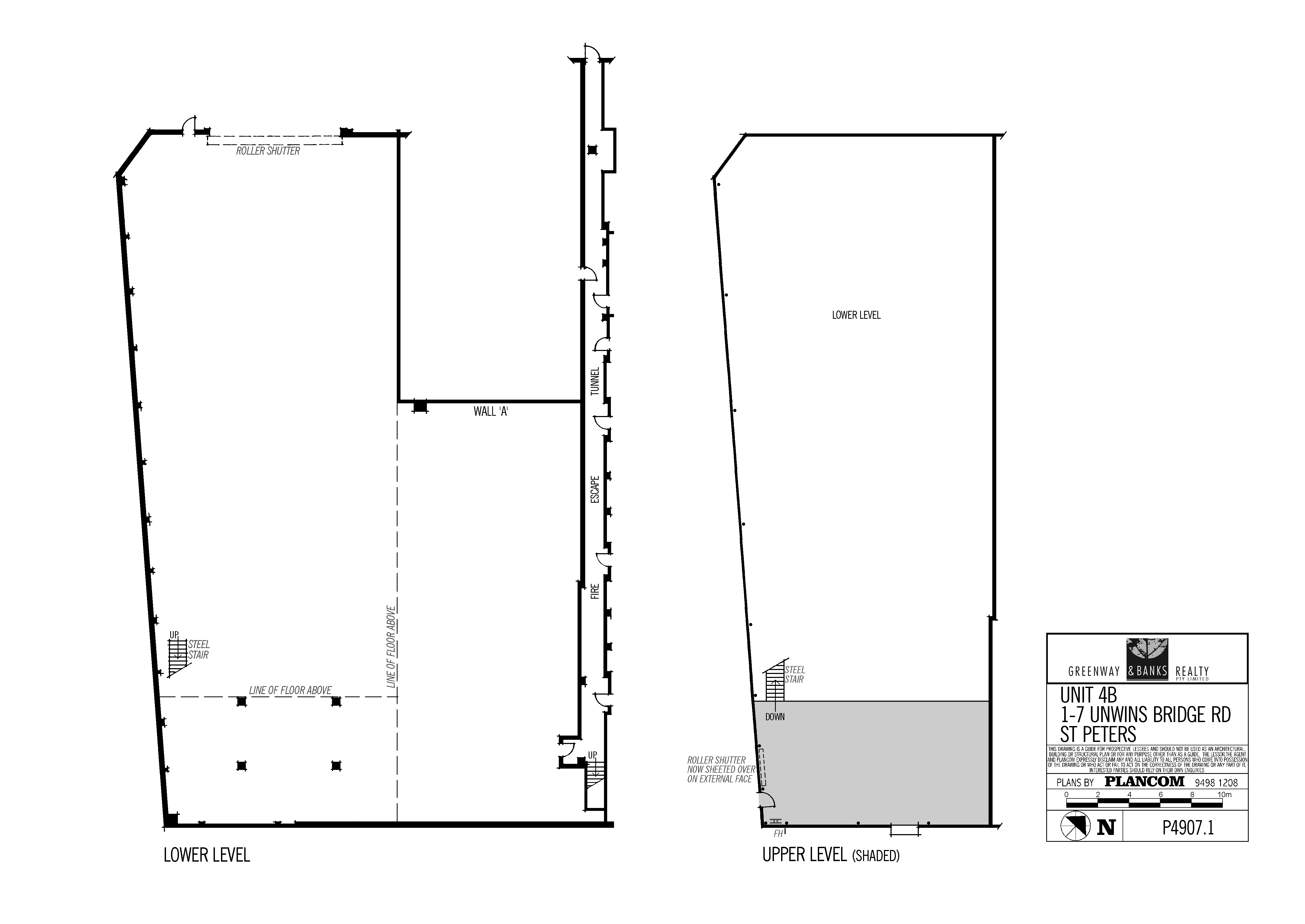
1147 sqm High Clearance Premises & Office on mixed use site

High clearance premises with good roller shutter access, natural light, toilet & kitchen facilities and parking on site. Separate office premises and amenities.
Ideal for recreation, high grade warehousing, distribution and a variety of associated uses.
Available October 2016

Property:Warehouse & Office
Leisure
Signage
Parking:25
Total Building Area:1147m²
Council:Marrickville
Open for Inspection Times:

By Appointment - Contact Agent.

Property Features:

- High Clearance Premises
- Mixed Use Site
- Ample Onsite Parking
- Excellent Access

Map

Loading...

Email This Agent




Every precaution has been taken to establish accuracy of the information but does not constitute any representation by the vendor or real estate agent. You should make your own enquiries as to its accuracy.